Buscador CABA
Volver a los resultados
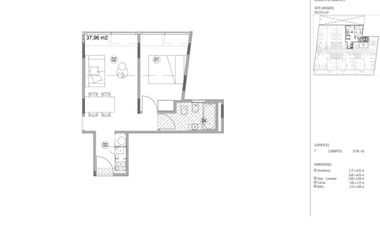
Foto 1
1 / 12
DepartamentoBelgranovia Properati

Apartamento en Venta en Belgrano

Belgrano · CABA
Dormitorios

1 dormitorio

Superficie total

53 m²

Descripción

Soldado de Independencia Piso 1° - Depto - Belgrano Departamento Dos ambientes con balcón y Amenities Superficie de la propiedad: -Superficie cubierto: 38.06 mts -Superficie semicubierta: 10.03 mts -Superficie total: 53.39 mts -Superficie amenities: 5.30 mts Distribución de la Propiedad: -Dormitorio 2.80 x 3.38 mts -Estar, comedor, cocina 4.06 x 5.23 mts -Baño 1.85 x 1.71 mts -Balcón 6.96 x 1.44 mts Luminosidad: Muy Buena Disposición: Frente Orientación: Servicios: Individuales Amenities: Gym – Piscina – Sauna – Sala de Reunión – Lavandería – Rooftop Calefacción y Aire acondicionado individuales tipo Split – Ventanas de Aluminio con DVH – Agua Caliente por Termotanque central – Control digital de seguridad - Ascensor Valor de Venta: U$D 206.000 ADVERTENCIA IMPORTANTE: Las expensas, ABL y Aysa no son exactas y están sujetas a modificaciones. Verificar el monto actualizado previo al alquiler/compra de la propiedad. Las medidas y superficies son aproximadas y orientativas. Las medidas exactas surgirían del título de propiedad. Andrea Imar – Mat. C.U.C.I.C.B.A.1493 Whatsapp: 116911---- Instagarm @inmobiliariaimar Anasagasti 2080, CABA. Tel 4824-4440 / 4824-1964 Contactar Contactar